



2 этажа
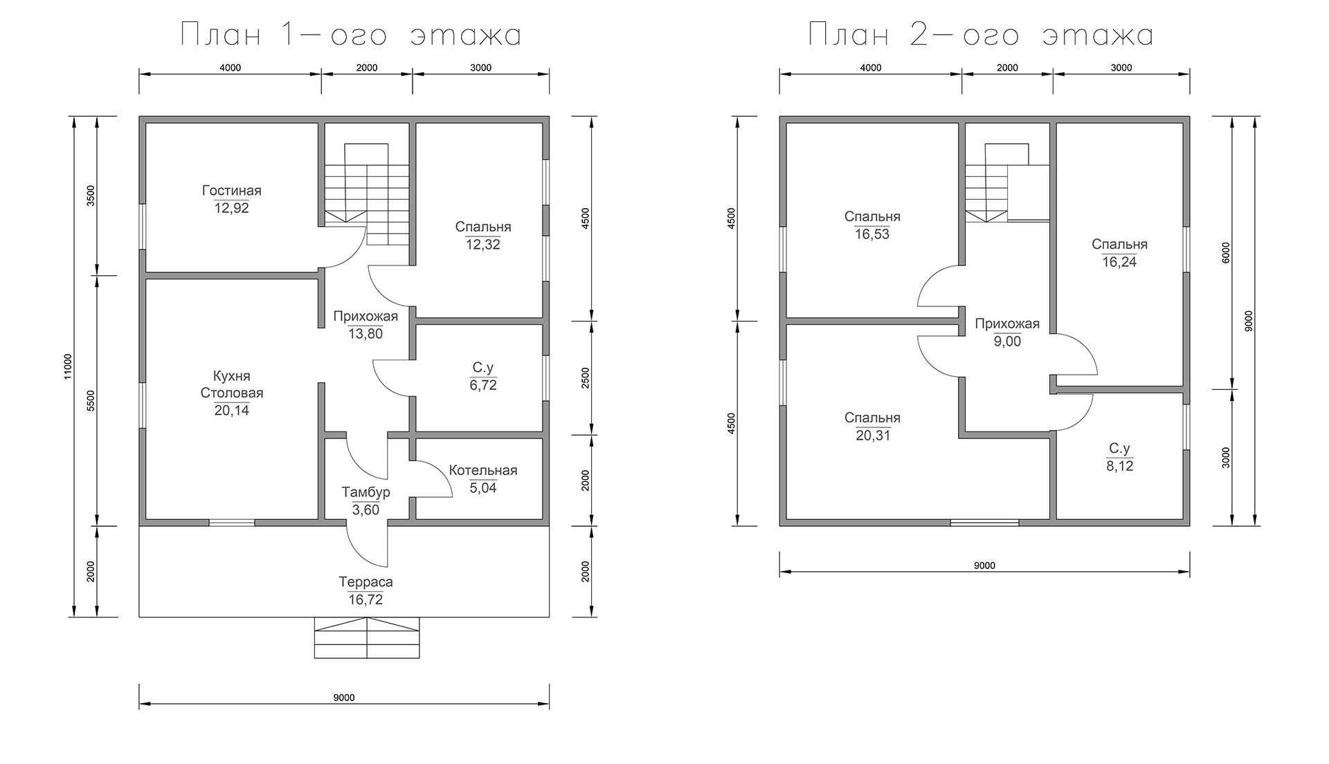
9х11 м
162 м2
1-1,5 месяца
В том случае, если Вам нужен настоящий замок на приусадебном участке, то каркасный дом 9 на 11 придется как нельзя кстати.
Строительная компания СК Домострой специализируется на постройке больших каркасных домов и точно знает толк в подобных постройках.
Заказывая коттедж большого размера в компании СК Домострой, вы получите дом, выстроенный по лучшим европейским стандартам. Более того, его можно будет стилизовать под швейцарский шале, и получить действительно необычную постройку.
Проект каркасного дома 9 на 11 с большой террасой – один из лучших вариантов, которые только можно отыскать на сегодняшний день.
Суммарная площадь всего коттеджа порядка 200 квадратных метров, и её удачно дополняет большая терраса, которую можно использовать в качестве летней кухни или помещения под зимний сад.
При проектировании были использованы лучшие западные коттеджи, и тем самым удалось совместить отечественные строительные материалы и западную планировку помещения.