Звонок по России бесплатный

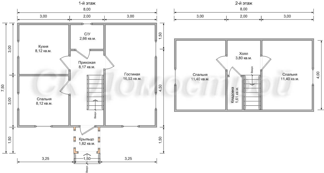
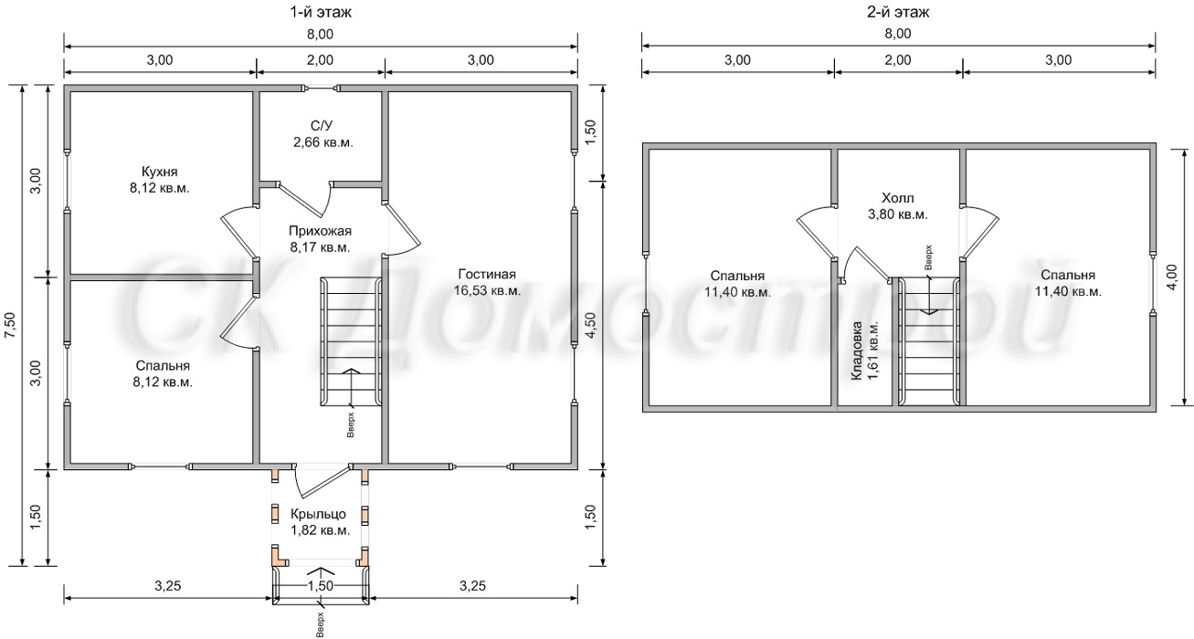
ДОМ «СЕРГЕЕВ» 6Х8

Уважаемый Посетитель сайта «СК Домострой»! Если Вам понравился один из наших проектов, но Вы хотите внести в него свои изменения, мы постараемся сделать все возможное, чтобы Ваши желания стали реальностью. Также возможны изменения габаритных размеров проекта, перемещение окон и дверей, расположение лестницы.

Наши комплектации

Базовая комплектация каркасного дома
Наименование комплектации Каркас Наружный контур Теплый контур С отделкой
Наружная отделка:
-
+
+
+
Утепление
-
-
+
+
Внутренняя отделка
-
-
-
+
Фундамент
Фундамент Рассчитывается и изготавливается индивидуально
Высоты этажей
Первый этаж 2,7 м 2,7 м 2,7 м 2,7 м
Второй этаж 2,5 м 2,5 м 2,5 м 2,5 м
Силовые конструкции
Основание: строганная строенная доска 45х140 мм
+
+
+
+
Черновой пол: сухая доска 20х100 мм
-
-
+
+
Балки перекрытия: сухая доска 40х200 мм
+
+
+
+
Силовой каркас наружных стен: сухая доска 40х150 мм
+
+
+
+
Внутренние перегородки: сухая доска 40х100 мм
+
+
+
+
Стропила: сухая доска 40х200 мм
+
+
+
+
Кровля
Кровельное покрытие: металлочерепица профиль СуперМонтерей
+
+
+
+
Подкровельная пароизоляция: мембранная пленка Изоспан AM
+
+
+
+
Подкровельный вент зазор: сухой брусок 40х50 мм
+
+
+
+
Подкровельная обрешетка: сухая доска 25х100 мм
+
+
+
+
Внешняя отделка
Ветрозащита: мембранная пленка
-
+
+
+
Вентилируемый фасад: рейка 20х40 мм
-
+
+
+
Отделка: имитация бруса 20х140 мм камерной сушки (горизонтально)
-
+
+
+
Подшивка свесов строганая доска 20х90 мм
-
+
+
+
Внутренняя отделка
Вентиляционный зазор: рейка 20х40 мм
-
-
-
+
Чистовой пол: плиты QUICK DECK 16 мм
-
-
-
+
Стены и перегородки: евровагонка
-
-
-
+
Потолки: евровагонка
-
-
-
+
Утепление и пароизоляция
Перекрытия: плитный утеплитель 200 мм
-
-
+
+
Наружный контур: плитный утеплитель 150 мм
-
-
+
+
Перегородки: плитный утеплитель 100 мм
-
-
-
+
Пароизоляция: пленка 200 мкм
-
-
+
+
Двери
Входная дверь: металлическая производство Россия
-
+
+
+
Межкомнатные двери: деревянные филенчатые
-
-
-
+
Окна
Окна: двухкамерные ПВХ "REHAU", размеры согласно проекту
-
+
+
+
Лестница
Лестница
-
-
-
+
Терраса (при наличии)
Пол: строганая доска 40х100 мм
-
+
+
+
Потолок: строганая доска 20х100 мм
-
+
+
+
Столбы: строганая доска 40х150 мм, строенная
-
+
+
+
Поручни: строганая доска 40х150 мм
-
+
+
+
Балясины: строганая доска 40х100 мм
-
+
+
+
Доставка и сборка
Сборка Сборка домокомплекта на участке заказчика
Доставка 50 км от МКАД, КАД бесплатно
Гарантия 3 года 3 года 3 года 3 года

Похожие проекты

Каркасный дом 4х6 «Алексеев»

ДОМ «АЛЕКСЕЕВ» 4Х6 М

Площадь: 40 м2
от 2 324 000 руб.
Каркасный дом 6х8 «Глебов»

ДОМ «ГЛЕБОВ» 6Х8 М

Площадь: 68 м2
от 967 000 руб.

ДОМ «АЛЕВТИНОВ» 6Х8 М

Площадь: 57 м2
от 1 051 000 руб.

НАПИСАТЬ СООБЩЕНИЕ!

    Отправляя заявку вы соглашаетесь с политикой конфиденциальности, а также с тем, что ваши данные обрабатывает SmartCaptcha.


    Call Now Button
    Мы используем cookie-файлы для наилучшего представления нашего сайта. Продолжая использовать этот сайт, вы соглашаетесь с использованием cookie-файлов.
    Принять
    Политика конфиденциальности